ノイファイミリーの日常、息子の成長など・・・
×
[PR]上記の広告は3ヶ月以上新規記事投稿のないブログに表示されています。新しい記事を書く事で広告が消えます。
さて、しばらく間があきましたが、
先週末に無事、安暖亭も引渡しが終わりました。
既にお引越もされて、
新しいお家でのお施主さん達の生活は始まっています。
引越しの荷物搬入前に完成写真を撮りましたので、
改めてご紹介。
以前紹介したものと同じようなものも多いですが・・・
まずは外観から。

緑豊かな敷地なので、アースカラーの外観が溶け込みます。
そしてサンルーム。

既製品の中でも、今回は天井部分が角型のタイプを選びました。
格子戸の色も大分落ち着いて馴染んできていました。

扉を入ってすぐのところに電話台兼収納。

反対側の下足入扉。1枚は鏡貼りになっています。

この鏡を貼った扉とそれ以外の扉の面が揃ってるところも、
建具やさんが気を使ってつくってくれた部分です。
玄関方向をリビングから見返すとこんな感じです。

そして吹き抜けからリビングを見下ろすと、

以前使っていたエクステンションテーブルも、
他の家具類と同じ色で塗装しなおしてもらいました。
薄型テレビもテレビ台の上に丁度納まっています。
ベンチ下の収納部分はこんな風に。

できるだけ露出のコードがごちゃごちゃしないように
内部に配線も仕込んであります。
キッチンはシンプルに。

対面式でリビングや庭の緑を眺めながらの調理ができる配置です。

奥の書斎コーナーから玄関やリビングを見ます。

この写真たちが、一番この部屋のあったかい風合いを現してるかもしれません。
さて、これまでこの安暖亭、洗面所や浴室のご紹介をしてませんでした。
1階のトイレと洗面・脱衣室は一つのスペースにまとめて、
できるだけゆったりと空間を使えるように配慮しました。

そしてお父さんがこだわったお風呂。

ユニットバスではありますが、ヒノキの香りが漂う、
木製のお風呂になりました。
写真を撮った時にはまだ仕上ってませんでしたが、
この窓の外に竹垣を回して、玉砂利を敷きこみ、
お風呂から眺められる坪庭が出来上がっています。
このユニットバス。
メーカーさんの話によりますと、見積は何度も出しているそうですが、
実際施工されるのは年間10軒あるかなしかだそうです。
通常のユニットバスに比べると値段も張るので、
金額を見てやっぱり・・・となる方々も多いそう。
今回はお父さんがお風呂がダイスキな方だったので、
迷わず決定されていました。
ユニットバスといえども侮れない見事なヒノキの香り。
普段は温泉の元などを入れて入浴されていたそうですが、
お湯をはると自然にヒノキの芳香がお風呂中に広がるので、
そのままで温泉気分を味わえるそうです。
さて、階段を登りつつ吹き抜けの壁を眺めると。

スポットライトで珪藻土の壁が照らし出されています。
その向こうに周るシンプルなシーリングファンが見えます。
階段も手摺も、その他の家具や内装材と同じ色に塗装してあります。

二階の部屋は、既存の床や柱を残しつつ、
違和感のないまとまりを出しました。

障子を開けると吹き抜け越しに下の階の気配が伝わってきます。

今の季節は風の抜けもよく、気持ちいい空気がまわっています。
造り付けにしたワークカウンターも使い易くなっています。

結構な天板の大きさがあるので、
色んなものを広げて作業するのにも便利です。
と、こんな感じで無事に完成いたしました。
先日引渡しの日に直会(なおらい)していただきましたが、
お父さんがオープンキッチンで、自作の野菜を振舞ってくださったり、
お孫さんがあちこち探検していたり、
大きなテーブルを囲んでみんなで団欒したり、
そのうちに皆お酒が回って、ベンチから気持ちのいい床に座ってくつろいだり。
面積としては小さなお家でしたが、
とっても楽しい時間を過ごせる空間になっていました。
うれしいな。
また、こんなお家を、
頑張ってつくっていきたいと思います。
先週末に無事、安暖亭も引渡しが終わりました。
既にお引越もされて、
新しいお家でのお施主さん達の生活は始まっています。
引越しの荷物搬入前に完成写真を撮りましたので、
改めてご紹介。
以前紹介したものと同じようなものも多いですが・・・
まずは外観から。
緑豊かな敷地なので、アースカラーの外観が溶け込みます。
そしてサンルーム。
既製品の中でも、今回は天井部分が角型のタイプを選びました。
格子戸の色も大分落ち着いて馴染んできていました。
扉を入ってすぐのところに電話台兼収納。
反対側の下足入扉。1枚は鏡貼りになっています。
この鏡を貼った扉とそれ以外の扉の面が揃ってるところも、
建具やさんが気を使ってつくってくれた部分です。
玄関方向をリビングから見返すとこんな感じです。
そして吹き抜けからリビングを見下ろすと、
以前使っていたエクステンションテーブルも、
他の家具類と同じ色で塗装しなおしてもらいました。
薄型テレビもテレビ台の上に丁度納まっています。
ベンチ下の収納部分はこんな風に。
できるだけ露出のコードがごちゃごちゃしないように
内部に配線も仕込んであります。
キッチンはシンプルに。
対面式でリビングや庭の緑を眺めながらの調理ができる配置です。
奥の書斎コーナーから玄関やリビングを見ます。
この写真たちが、一番この部屋のあったかい風合いを現してるかもしれません。
さて、これまでこの安暖亭、洗面所や浴室のご紹介をしてませんでした。
1階のトイレと洗面・脱衣室は一つのスペースにまとめて、
できるだけゆったりと空間を使えるように配慮しました。
そしてお父さんがこだわったお風呂。
ユニットバスではありますが、ヒノキの香りが漂う、
木製のお風呂になりました。
写真を撮った時にはまだ仕上ってませんでしたが、
この窓の外に竹垣を回して、玉砂利を敷きこみ、
お風呂から眺められる坪庭が出来上がっています。
このユニットバス。
メーカーさんの話によりますと、見積は何度も出しているそうですが、
実際施工されるのは年間10軒あるかなしかだそうです。
通常のユニットバスに比べると値段も張るので、
金額を見てやっぱり・・・となる方々も多いそう。
今回はお父さんがお風呂がダイスキな方だったので、
迷わず決定されていました。
ユニットバスといえども侮れない見事なヒノキの香り。
普段は温泉の元などを入れて入浴されていたそうですが、
お湯をはると自然にヒノキの芳香がお風呂中に広がるので、
そのままで温泉気分を味わえるそうです。
さて、階段を登りつつ吹き抜けの壁を眺めると。
スポットライトで珪藻土の壁が照らし出されています。
その向こうに周るシンプルなシーリングファンが見えます。
階段も手摺も、その他の家具や内装材と同じ色に塗装してあります。
二階の部屋は、既存の床や柱を残しつつ、
違和感のないまとまりを出しました。
障子を開けると吹き抜け越しに下の階の気配が伝わってきます。
今の季節は風の抜けもよく、気持ちいい空気がまわっています。
造り付けにしたワークカウンターも使い易くなっています。
結構な天板の大きさがあるので、
色んなものを広げて作業するのにも便利です。
と、こんな感じで無事に完成いたしました。
先日引渡しの日に直会(なおらい)していただきましたが、
お父さんがオープンキッチンで、自作の野菜を振舞ってくださったり、
お孫さんがあちこち探検していたり、
大きなテーブルを囲んでみんなで団欒したり、
そのうちに皆お酒が回って、ベンチから気持ちのいい床に座ってくつろいだり。
面積としては小さなお家でしたが、
とっても楽しい時間を過ごせる空間になっていました。
うれしいな。
また、こんなお家を、
頑張ってつくっていきたいと思います。
PR
おやじがおのあれんたん。
実は意外にデリケートなオトコでして。

卵と鶏肉のアレルギーがあります。
せっかくの1歳のお誕生日祝い。
家族みんなで食べられるケーキを・・・
そこでお願いしたのがお友だちのお菓子職人、takaさん。
我家のお祝い事では、いつもお世話になっているお菓子職人さんです。
お菓子に卵は必需品。
なのに卵ぬきでのケーキの依頼。
そんな難しい課題も快く引き受けてもらい、
いつものように、期待以上のお菓子を届けてくれました。
それがこちら。

キレイでしょ~。
バナナとベリーのムースです。
上にはバーナーでこんがり色のバナナとかわいいイチゴ。

ボリューム感もありながら、どこか涼しげなデコレーション。
いつもホントに見た目にも楽しめるお菓子を作ってくれるtakaさん。
でも、その本当の魅力は、
食べたときに「う~~~ん!!!」と実感します。
バナナのムースと聞くと、ちょっとこってり甘~い感じを受けますが、
控えめな甘さと、中のベリーのムースと甘煮のほどよいすっぱさ、
更に一番下の生地のサクサク感が丁度よいバランスで、
これまたすいすい。食べられちゃいます。
主役のあれんたんにはもったいないくらい・・・
と思ったら、主役が一番気に入ってこの通り。


今回もまた、あっという間に我らの腹の中へ。
おいしかった~。
Takaちゃん、ごちそうさまでした!
実は意外にデリケートなオトコでして。
卵と鶏肉のアレルギーがあります。
せっかくの1歳のお誕生日祝い。
家族みんなで食べられるケーキを・・・
そこでお願いしたのがお友だちのお菓子職人、takaさん。
我家のお祝い事では、いつもお世話になっているお菓子職人さんです。
お菓子に卵は必需品。
なのに卵ぬきでのケーキの依頼。
そんな難しい課題も快く引き受けてもらい、
いつものように、期待以上のお菓子を届けてくれました。
それがこちら。
キレイでしょ~。
バナナとベリーのムースです。
上にはバーナーでこんがり色のバナナとかわいいイチゴ。
ボリューム感もありながら、どこか涼しげなデコレーション。
いつもホントに見た目にも楽しめるお菓子を作ってくれるtakaさん。
でも、その本当の魅力は、
食べたときに「う~~~ん!!!」と実感します。
バナナのムースと聞くと、ちょっとこってり甘~い感じを受けますが、
控えめな甘さと、中のベリーのムースと甘煮のほどよいすっぱさ、
更に一番下の生地のサクサク感が丁度よいバランスで、
これまたすいすい。食べられちゃいます。
主役のあれんたんにはもったいないくらい・・・
と思ったら、主役が一番気に入ってこの通り。
今回もまた、あっという間に我らの腹の中へ。
おいしかった~。
Takaちゃん、ごちそうさまでした!
いよいよ。
運命の日!
+ + + + + + + + + +


そんなワケで、
明け方助産師さんに相談に。
すっかり「やる気なし子」だったワタシが、
「おしるし」でもうちょびっと頑張ってみる気になったのを聞いて、
助産師さんがやさしく応援してくれました。
「自然(分娩)でいけるなら、ギリギリまで頑張ってみよう!!」って。
そして、午前9時から、手術室の予約が入っている午後2時前まで、
再度促進剤の投与をしてくれることになりました。

今日はさすがに旦那もお仕事なので、一人で分娩室へ。
途中から、ママが来て、ずっと待機しててくれました。
いずれにしても、今日はもう絶対に赤ちゃんには会えるし、
このツライ(・・・ってか、精神的にってだけだけど)日々から解放される!!
って思ったら、もうHappy!
陣痛はちょこっときたけど、
なんとな~く、
「やっぱ、帝王切開でしょ?!」ってな「みんなの雰囲気」で、
いよいよ午後は手術となりました。
ここまでやれば、もう納得です。

いやはや、気楽~に考えてたんスよ。
帝王切開 って。
麻酔かけて腹きるんでしょ~♪ くらいに。
どっちだってイタイなら、麻酔かけてイタイ方がいいぢゃん!って。
でもね。そーじゃないらしいんです。
何しろ、「腹を切る」んですから。
麻酔が切れたらイタイらしいし。キズはあるし。+αのリスクもあるし。
・・・と、ここにきて、ビビリまくってるんです。
ええいっ!! もう、どうにでもしてくれや!!!
とっとと白黒はっきりさせてくれ!!!
手術室では、aikoのBGMが流れてました。
局部麻酔なので、「何か音楽のリクエストとかありますか?」
なんて言ってもらっちゃったりして。
まさか手術中に音楽聴けるなんて思ってなかったのでそのままで。
総じて若いスタッフの方々だけど、皆てきぱきと役割をこなしてくれて、
一つ一つ説明しながら処置していってくれるので、
手術中もとっても安心できました。
そしていよいよ・・・
運命の瞬間・・・!!!


先生から、「赤ちゃん出ましたよ!」と言われ、
その後彼の体を吸引された後に、元気な泣き声が聞こえた時の感動は、
もう、言葉になりません。
ただただ、先生と周りのスタッフの方々に、
「ここまで導いてきてくれて、本当にありがとう!!」
と、感謝の気持ちで一杯でした。
そしてようやく。
終わった~!!!
とにかく長く長く、長かった出産が。

先生から、
「おなか。開いてみたら、赤ちゃんの首にへその緒がひとまきまわってた。
だからこのまま自然分娩だったら、赤ちゃんきっと苦しかったかもしれないね。
帝王切開にしてよかったよ。」
って、言われました。
出産って。
その母子の状況にあわせて、来るべき時に来るべき姿で起こるものなのかも・・・
本当に、本当に、
神秘的!!!

このまま動けないんです。
麻酔切れたらおなか痛くなってくるし。
自分の重さで床ズレになりそだし。
もうね。寝るが勝ち・・・ ってんで、
とにかく寝ました。
そしてワタシのお産も、
なんとか終了です。
+ + + + + + + + + + +
・・・とまぁ、こんな経緯を経て、
丁度一年前の今日、このオトコは誕生いたしました。
今から思えば、大変だったんだかなんだか・・・
ワケわっかんないお産ではありましたが、
あれから一年、大きな病気や怪我をすることもなく、
すくすくと育ってくれたことを、本当に嬉しく思います。
はっぴ~ば~すでぃ♪
あれんたん。
運命の日!
+ + + + + + + + + +
そんなワケで、
明け方助産師さんに相談に。
すっかり「やる気なし子」だったワタシが、
「おしるし」でもうちょびっと頑張ってみる気になったのを聞いて、
助産師さんがやさしく応援してくれました。
「自然(分娩)でいけるなら、ギリギリまで頑張ってみよう!!」って。
そして、午前9時から、手術室の予約が入っている午後2時前まで、
再度促進剤の投与をしてくれることになりました。
今日はさすがに旦那もお仕事なので、一人で分娩室へ。
途中から、ママが来て、ずっと待機しててくれました。
いずれにしても、今日はもう絶対に赤ちゃんには会えるし、
このツライ(・・・ってか、精神的にってだけだけど)日々から解放される!!
って思ったら、もうHappy!
陣痛はちょこっときたけど、
なんとな~く、
「やっぱ、帝王切開でしょ?!」ってな「みんなの雰囲気」で、
いよいよ午後は手術となりました。
ここまでやれば、もう納得です。
いやはや、気楽~に考えてたんスよ。
帝王切開 って。
麻酔かけて腹きるんでしょ~♪ くらいに。
どっちだってイタイなら、麻酔かけてイタイ方がいいぢゃん!って。
でもね。そーじゃないらしいんです。
何しろ、「腹を切る」んですから。
麻酔が切れたらイタイらしいし。キズはあるし。+αのリスクもあるし。
・・・と、ここにきて、ビビリまくってるんです。
ええいっ!! もう、どうにでもしてくれや!!!
とっとと白黒はっきりさせてくれ!!!
手術室では、aikoのBGMが流れてました。
局部麻酔なので、「何か音楽のリクエストとかありますか?」
なんて言ってもらっちゃったりして。
まさか手術中に音楽聴けるなんて思ってなかったのでそのままで。
総じて若いスタッフの方々だけど、皆てきぱきと役割をこなしてくれて、
一つ一つ説明しながら処置していってくれるので、
手術中もとっても安心できました。
そしていよいよ・・・
運命の瞬間・・・!!!
先生から、「赤ちゃん出ましたよ!」と言われ、
その後彼の体を吸引された後に、元気な泣き声が聞こえた時の感動は、
もう、言葉になりません。
ただただ、先生と周りのスタッフの方々に、
「ここまで導いてきてくれて、本当にありがとう!!」
と、感謝の気持ちで一杯でした。
そしてようやく。
終わった~!!!
とにかく長く長く、長かった出産が。
先生から、
「おなか。開いてみたら、赤ちゃんの首にへその緒がひとまきまわってた。
だからこのまま自然分娩だったら、赤ちゃんきっと苦しかったかもしれないね。
帝王切開にしてよかったよ。」
って、言われました。
出産って。
その母子の状況にあわせて、来るべき時に来るべき姿で起こるものなのかも・・・
本当に、本当に、
神秘的!!!
このまま動けないんです。
麻酔切れたらおなか痛くなってくるし。
自分の重さで床ズレになりそだし。
もうね。寝るが勝ち・・・ ってんで、
とにかく寝ました。
そしてワタシのお産も、
なんとか終了です。
+ + + + + + + + + + +
・・・とまぁ、こんな経緯を経て、
丁度一年前の今日、このオトコは誕生いたしました。
今から思えば、大変だったんだかなんだか・・・
ワケわっかんないお産ではありましたが、
あれから一年、大きな病気や怪我をすることもなく、
すくすくと育ってくれたことを、本当に嬉しく思います。
はっぴ~ば~すでぃ♪
あれんたん。
記録は二日目ですが、
この日で陣痛促進剤を投与し始めて3日目になります。
前日の薬で思うような陣痛がおこらなかったので、
この日は別の薬を使用してまた一日フォアグラの缶詰になります。
周囲の妊婦さんは次々に出産を終えて病室に戻ってきてました。
いつかは終わるってわかっていても、
恐ろしく長く感じられる数日間です。
こんなにこんなに近くにいるのに、
顔が見られないこのツラさ。
もうしばらく続きます。
+ + + + + + + + + + +


もうね、今日からは違う薬っつったって、
気持ち的にはすっかり慣れきっちゃってるワケです。
昨日入れられた棒を取り出したときは痛かったんだけど、
余計にそうなると気分は帝王切開にシフトしちゃってるんですね~。
そんなに頑張らなくたっていいじゃんっ!! って。
んなわけで、NSTの結果も、見事にその意図を汲んでくれちゃったモノに、
なっちゃってるわけです。
オソロシヤ・・・

今日は旦那も出産に備えてお仕事休み。
午前中から二人で分娩室で本読んで、なごやか~に過ごしてます。
・・・なごやかすぎだって・・・
これじゃ、苦労の末の出産って、気がしないよな~。
「昨日はもっと痛がってたんだヨ!」なんて弁明してみるも、
ゆるゆるモードは3人(チビも)そろって変らず、なのデス。

こういう邪念っつ~のは、
遺伝するんすかね?
二人そろってな~んか、
こういう魂胆だったりするんッスよ。
性格似てる?!

やる気のない陣痛だったワケなんすヨ。
でも、一応いろいろな処置のお陰で子宮が3cm位開いてきたそうです。
「あともう少し、ここまできたら頑張ってみない?」
と先生に言われて、ガ~~~ン!!!
「(ここまで子宮が開いてきたから)もったいない」って言われても、
前向きになんて考えられないワケなんすよ。
「どうして楽して産んじゃいけないのぉおぉぉおおお~~~?!?!?!」
てなワケなんです。

晩ごはんもぺろりと平らげて、+ パン2コ 一気食いっすヨ!!
もう、やりきれない・・・
今夜も眠れないかも・・・
ってなワケで、助産師さんに早々に昨日もらった眠れるお薬をお願いして、
消灯すぎ頃もらえるようにしておきました。
が!!!、 全く必要なし!!!
爆睡!!! の、ワタクシなのです。
この日で陣痛促進剤を投与し始めて3日目になります。
前日の薬で思うような陣痛がおこらなかったので、
この日は別の薬を使用してまた一日フォアグラの缶詰になります。
周囲の妊婦さんは次々に出産を終えて病室に戻ってきてました。
いつかは終わるってわかっていても、
恐ろしく長く感じられる数日間です。
こんなにこんなに近くにいるのに、
顔が見られないこのツラさ。
もうしばらく続きます。
+ + + + + + + + + + +
もうね、今日からは違う薬っつったって、
気持ち的にはすっかり慣れきっちゃってるワケです。
昨日入れられた棒を取り出したときは痛かったんだけど、
余計にそうなると気分は帝王切開にシフトしちゃってるんですね~。
そんなに頑張らなくたっていいじゃんっ!! って。
んなわけで、NSTの結果も、見事にその意図を汲んでくれちゃったモノに、
なっちゃってるわけです。
オソロシヤ・・・
今日は旦那も出産に備えてお仕事休み。
午前中から二人で分娩室で本読んで、なごやか~に過ごしてます。
・・・なごやかすぎだって・・・
これじゃ、苦労の末の出産って、気がしないよな~。
「昨日はもっと痛がってたんだヨ!」なんて弁明してみるも、
ゆるゆるモードは3人(チビも)そろって変らず、なのデス。
こういう邪念っつ~のは、
遺伝するんすかね?
二人そろってな~んか、
こういう魂胆だったりするんッスよ。
性格似てる?!
やる気のない陣痛だったワケなんすヨ。
でも、一応いろいろな処置のお陰で子宮が3cm位開いてきたそうです。
「あともう少し、ここまできたら頑張ってみない?」
と先生に言われて、ガ~~~ン!!!
「(ここまで子宮が開いてきたから)もったいない」って言われても、
前向きになんて考えられないワケなんすよ。
「どうして楽して産んじゃいけないのぉおぉぉおおお~~~?!?!?!」
てなワケなんです。
晩ごはんもぺろりと平らげて、+ パン2コ 一気食いっすヨ!!
もう、やりきれない・・・
今夜も眠れないかも・・・
ってなワケで、助産師さんに早々に昨日もらった眠れるお薬をお願いして、
消灯すぎ頃もらえるようにしておきました。
が!!!、 全く必要なし!!!
爆睡!!! の、ワタクシなのです。
去年の今頃は、
ワタクシは病院で点滴のフォアグラ状態でした。
5月28日が予定日だった息子あれんたんが、
腹の中に居座り続けて1週間を過ぎ、
入院しながら陣痛促進剤を4日間、まるまる投与され続けておりました。
今日からあれんたん誕生までの数日間を
短期集中連載でお伝えします。
+ + + + + + + + + +

・・・とまぁ、いつのまにか風のように十月十日は過ぎ、
あれよあれよと予定日を超過してさすがにもうゲンナリ。
今日も昨日に引き続き、朝から促進剤を打たれる予定。
今日中にカタを付けたいが、
今日生まれちゃったら、
「666」の「ダミアン~?!」

午前中はとにかく余裕~。
ちょっと張りはきているみたいな針の動きだけど、
ジブンじゃ判らない?!?!
助産士さんに、「陣痛きてる~?」なんて
聞いてるようじゃ、マダマダぢゃ!

午前中は先生までもがっくりさせてしまった貧弱陣痛だったケド、
午後はいい感じ?!
昼飯食ったからか?! ゲンキンな奴よのぅ・・・

そんなワケで、さっきまでの余裕はどこへやら。
いきなり↑の顔デス。
陣痛の山にのって、
ゆっくり吸って~
ゆっくり吐いて~
の繰り返し。
そして陣痛がきてない谷間には、
なるべく普通の呼吸でリラックス・・・。

何が辛いって、
一日中同じ姿勢で動けないってことですヨ。
しかも恐ろしく重い腹が乗っかってる状態で。
もうそのうち陣痛なのか、腰の痛みなのか、
わからなくなるワケです。
一方で、陣痛にがしのコツは覚えて気もゆるみ、
退屈もピークになって助産士さんとおしゃべり。
すると、
やる気のない陣痛ラインがそこに・・・



子宮口を開く為に、
水でふやける棒みたいなモンを、
7本もマタにつっこまれ絶叫。
大泣きするワケです。
先生と助産士さんたちは何も悪くないのに、
自分が「レイプ魔」にでもなったよな気分になったかもしれんです。
でも、イタイんだよ~~~!!!
もう、ここまで頑張れば、
明日帝王切開になってもいい!と、
先生に明日は必ず産ませてもらうことをお願いしまシタ。
ワタクシは病院で点滴のフォアグラ状態でした。
5月28日が予定日だった息子あれんたんが、
腹の中に居座り続けて1週間を過ぎ、
入院しながら陣痛促進剤を4日間、まるまる投与され続けておりました。
今日からあれんたん誕生までの数日間を
短期集中連載でお伝えします。
+ + + + + + + + + +
・・・とまぁ、いつのまにか風のように十月十日は過ぎ、
あれよあれよと予定日を超過してさすがにもうゲンナリ。
今日も昨日に引き続き、朝から促進剤を打たれる予定。
今日中にカタを付けたいが、
今日生まれちゃったら、
「666」の「ダミアン~?!」
午前中はとにかく余裕~。
ちょっと張りはきているみたいな針の動きだけど、
ジブンじゃ判らない?!?!
助産士さんに、「陣痛きてる~?」なんて
聞いてるようじゃ、マダマダぢゃ!
午前中は先生までもがっくりさせてしまった貧弱陣痛だったケド、
午後はいい感じ?!
昼飯食ったからか?! ゲンキンな奴よのぅ・・・
そんなワケで、さっきまでの余裕はどこへやら。
いきなり↑の顔デス。
陣痛の山にのって、
ゆっくり吸って~
ゆっくり吐いて~
の繰り返し。
そして陣痛がきてない谷間には、
なるべく普通の呼吸でリラックス・・・。
何が辛いって、
一日中同じ姿勢で動けないってことですヨ。
しかも恐ろしく重い腹が乗っかってる状態で。
もうそのうち陣痛なのか、腰の痛みなのか、
わからなくなるワケです。
一方で、陣痛にがしのコツは覚えて気もゆるみ、
退屈もピークになって助産士さんとおしゃべり。
すると、
やる気のない陣痛ラインがそこに・・・
子宮口を開く為に、
水でふやける棒みたいなモンを、
7本もマタにつっこまれ絶叫。
大泣きするワケです。
先生と助産士さんたちは何も悪くないのに、
自分が「レイプ魔」にでもなったよな気分になったかもしれんです。
でも、イタイんだよ~~~!!!
もう、ここまで頑張れば、
明日帝王切開になってもいい!と、
先生に明日は必ず産ませてもらうことをお願いしまシタ。
これまで内装工事のお話を中心に載せていた安暖亭ですが。
外装もほぼ全面的に手を加えて、お色直しをしておりました。
サッシなども新しく交換して、
外壁の色や仕上げ、更には屋根も葺き替えて、
これまでの印象とはがらりと変わった外観になりました。
北側の外観の変化はこんな感じ。

お父さんが屋根材の深いグリーンを選ばれたので、
それにあわせてアースカラー系でまとめてみました。
壁の下の方はざっくりとした風合いのボーダータイル。
上部は吹きつけで仕上げに変化を出しています。
玄関側はといいますと。

玄関扉の手前にサンルームが設置されています。

約4畳もあるこのスペースが、
光を存分に取り込むサンルームでもあり、
この家の入口である玄関でもあります。
ちょっと変則的ですが、
サンルームを入って式台に立ってから、玄関扉をガラガラガラ・・・と開ける。
そんなプランになっています。
実はこの式台。
古いこの家の玄関で使っていたものをキレイに洗って塗装して、
再利用しました。
上り框となるこの式台を部屋外に出したお陰で、
玄関扉の内側のスペースが非常に有効に使えるようになりました。
入ってすぐの左手には、階段手摺にもなっている例の下足入。

フラットな扉の一枚が鏡になっていて、
リビングの室内が移りこんでいます。
玄関を見返してみるとこんな感じ。

格子戸から差し込む光と、その向こうに見える庭の緑。
気持ちがいいです。
この扉は、全開できるように鍵の金物も特別なものを見つけてくれたので、
気候がいい時期は開放して、寒い時期には閉めて使用します。
正面キッチンにも窓があるので、南北の風が抜けていきます。

2階のトップライトからも風が通り抜けるので、
しばらくはクーラーも使用する必要がなさそうです。
リビングのベンチに座って正面に見える3枚建具も仕上りました。

奥の間は、当分はお父さんの書斎として使われます。
これから先、もしも2階に上がる生活がいよいよしんどくなったときには、
こちらの壁を少し手前に出して寝室となる予定です。
書斎側から玄関方向を見るとこんな感じです。

ようやく養生がとれて、フローリングの風合いも見えてきました。
今回使用したこのフローリング。すっごくいいです。
幅広の板なので、木目の柄やムラも十分に眺められて、
少しマットな手触りに仕上っているので、触った感じもすごく自然な感じです。
テカテカした光沢もなく、やさしい肌触り。
色もなんともいえない微妙なやわらかさがあって、とっても気に入りました。
リビングのベンチや家具、階段なども同じ色味で統一させて塗装しています。

ツヤもほんの少しにとどめているので、フローリングに近い風合いです。
吹き抜けから見下ろすと、フローリングの板のムラがよくわかります。

このムラも、好き嫌いがあるので相手を選んでオススメしないといけないですが、
今回のお施主さんは、珪藻土と共にとても気に入ってくださいました。
さて、2階に上がってみると。

こちらは既存の床をそのまま使用しているので、
古い部分と新しい部分が浮いてしまわないように、
あまり新しすぎず、でもボロボロな感じもしないような仕上げになる様、
ペンキ屋さんが頑張ってくれました。
実はリフォームの場合、この古い部分と新しい部分の見切り方に、
結構神経を使ったりします。
下手に考えなく計画してしまうと、
妙にそこだけちぐはぐつぎはぎのちんちくりんみたいになってしまうので、
予算との兼ね合いもみながら、うまく既存部分となじむようによく検討します。
以前は唐突に存在していて邪魔だった柱も、

カウンターがついたお陰で違和感なくなり、
障子から差し込むやさしい光で落ち着いた空間になりました。
カウンター側から入口を見返すとこんな感じ。

右側のトップライトの下の床が、今回増設した部分ですが、
殆ど違いがわからなくなっています。
あえてちょっと古めかしいデザインにした入口の扉も、なんとなくなじんでいます。
この外側の階段部分に大きな窓が付いているので、
そこから差し込む光をこの入口のガラス戸から部屋内に更に引き込んでいます。
と、なんとかこの安暖亭も、ほぼ完成に近づきました。
明日にはクリーニングを入れて、きれいに内部を掃除してもらいます。
引渡しも近いので、あともうひとふんばりです。
外装もほぼ全面的に手を加えて、お色直しをしておりました。
サッシなども新しく交換して、
外壁の色や仕上げ、更には屋根も葺き替えて、
これまでの印象とはがらりと変わった外観になりました。
北側の外観の変化はこんな感じ。
お父さんが屋根材の深いグリーンを選ばれたので、
それにあわせてアースカラー系でまとめてみました。
壁の下の方はざっくりとした風合いのボーダータイル。
上部は吹きつけで仕上げに変化を出しています。
玄関側はといいますと。
玄関扉の手前にサンルームが設置されています。
約4畳もあるこのスペースが、
光を存分に取り込むサンルームでもあり、
この家の入口である玄関でもあります。
ちょっと変則的ですが、
サンルームを入って式台に立ってから、玄関扉をガラガラガラ・・・と開ける。
そんなプランになっています。
実はこの式台。
古いこの家の玄関で使っていたものをキレイに洗って塗装して、
再利用しました。
上り框となるこの式台を部屋外に出したお陰で、
玄関扉の内側のスペースが非常に有効に使えるようになりました。
入ってすぐの左手には、階段手摺にもなっている例の下足入。
フラットな扉の一枚が鏡になっていて、
リビングの室内が移りこんでいます。
玄関を見返してみるとこんな感じ。
格子戸から差し込む光と、その向こうに見える庭の緑。
気持ちがいいです。
この扉は、全開できるように鍵の金物も特別なものを見つけてくれたので、
気候がいい時期は開放して、寒い時期には閉めて使用します。
正面キッチンにも窓があるので、南北の風が抜けていきます。
2階のトップライトからも風が通り抜けるので、
しばらくはクーラーも使用する必要がなさそうです。
リビングのベンチに座って正面に見える3枚建具も仕上りました。
奥の間は、当分はお父さんの書斎として使われます。
これから先、もしも2階に上がる生活がいよいよしんどくなったときには、
こちらの壁を少し手前に出して寝室となる予定です。
書斎側から玄関方向を見るとこんな感じです。
ようやく養生がとれて、フローリングの風合いも見えてきました。
今回使用したこのフローリング。すっごくいいです。
幅広の板なので、木目の柄やムラも十分に眺められて、
少しマットな手触りに仕上っているので、触った感じもすごく自然な感じです。
テカテカした光沢もなく、やさしい肌触り。
色もなんともいえない微妙なやわらかさがあって、とっても気に入りました。
リビングのベンチや家具、階段なども同じ色味で統一させて塗装しています。
ツヤもほんの少しにとどめているので、フローリングに近い風合いです。
吹き抜けから見下ろすと、フローリングの板のムラがよくわかります。
このムラも、好き嫌いがあるので相手を選んでオススメしないといけないですが、
今回のお施主さんは、珪藻土と共にとても気に入ってくださいました。
さて、2階に上がってみると。
こちらは既存の床をそのまま使用しているので、
古い部分と新しい部分が浮いてしまわないように、
あまり新しすぎず、でもボロボロな感じもしないような仕上げになる様、
ペンキ屋さんが頑張ってくれました。
実はリフォームの場合、この古い部分と新しい部分の見切り方に、
結構神経を使ったりします。
下手に考えなく計画してしまうと、
妙にそこだけちぐはぐつぎはぎのちんちくりんみたいになってしまうので、
予算との兼ね合いもみながら、うまく既存部分となじむようによく検討します。
以前は唐突に存在していて邪魔だった柱も、
カウンターがついたお陰で違和感なくなり、
障子から差し込むやさしい光で落ち着いた空間になりました。
カウンター側から入口を見返すとこんな感じ。
右側のトップライトの下の床が、今回増設した部分ですが、
殆ど違いがわからなくなっています。
あえてちょっと古めかしいデザインにした入口の扉も、なんとなくなじんでいます。
この外側の階段部分に大きな窓が付いているので、
そこから差し込む光をこの入口のガラス戸から部屋内に更に引き込んでいます。
と、なんとかこの安暖亭も、ほぼ完成に近づきました。
明日にはクリーニングを入れて、きれいに内部を掃除してもらいます。
引渡しも近いので、あともうひとふんばりです。
さて、
安暖亭の現場も、佳境に入ってまいりました。
前回お施主さんの希望で急遽範囲が広がった珪藻土仕上げも、
1階の壁と天井全面に施されました。

そしてキッチンも設置。

キッチンに関しては、お施主さんのお母さんご希望の色の中で、
全体的な部屋のイメージにあうものを選びました。
あまり主張しすぎずに、それでも色味が明るく爽やかなものです。

キッチンの床は淡いオレンジ系のタイル。
拭き掃除のし易い施釉タイル(ツヤのあるもの)で、
目地も油や調味料の汚れ等が目立たないように、
濃い茶系のものを使用しています。
実はワタクシ、自邸のキッチンでは濃い茶系のタイルに、
まっ白い目地を使用いたしました。
デザイン優先でそれに決めてしまったのですが、
やはりキッチンの油などの飛び跳ねはかなりのもので、
結構よごれが目立つんですね。
インスタントコーヒーの粉をこぼした日にゃ、
いっそのこと目地全面に刷り込んでやろうかと思いました。
なので、自邸での実験の失敗(とまではいきませんが、経験)を糧にして、
(何しろカラダ張って学習する建築士ですので。おほほ。)
今回はこういった取り合わせでタイルと目地を選びました。
更に正面奥の壁も他の部分と同じ仕上に見えますが、
実はここだけ珪藻土部分と同系色のビニルクロスです。
上から塗れるペンキや汚れを拭取れるタイルならよいのですが、
珪藻土の場合は汚れが付くとそのまま黒ずんで浸透していってしまうので、
念のため汚れを拭取れるクロスで仕上ました。
珪藻土の黄色っぽい壁と天井がキッチンにまで至ったので、
なんだか少しポップな感じもしつつ、明るく楽しそうなキッチンになりました。
吹き抜け部分も全面的に珪藻土が塗られました。

珪藻土のアップを撮ってみたけど、そのテクスチャー、
お分かりいただけるでしょうか。

今回は壁などの垂直面は横引きの仕上げ。
天井などの水平面は、木ゴテ押さえといって、仕上げの感じを変えています。
そしていよいよ 真打登場!
じゃじゃ~ん!!!

玄関格子扉です。
この扉。余計な金物が目立つのがいやだったので、
引き手部分(扉を引くための手が入るところ)まで
掘り込みになっています。
鍵の施錠用の金物だけはどうしても付いてしまいますが、
すごくすっきりと仕上げになりました。

ちゃんと裏表同じように格子がはいっています。
ありがとう~♪ 職人さんっ!
また一つ、名作が出来上がりました。
2階の吹き抜けに面する部分にも障子が入ります。

まだ障子紙を貼っていないので枠のみですが。
季節によって、冬の寒い時期には障子を閉めて、
夏は外してのびやかな空間と風の流れを取り込むなど、
臨機応変な使用ができるようになっています。
さて、仕上げ工事もあと少しとなった安暖亭。
ここに置く家具なども、今お父さんが色々検討中です。
実は先日ご相談を受けました。
新しいテーブルを買おうと思っていたが、他に色々そろえるものもあるし。
以前子供たちが家にいた大家族の頃に使っていたテーブルを、
リニューアルして使用できないだろうか・・・と。
早速業者さんと一緒に敷地内の物置を散策・・・物色?
見せていただいたテーブルは、
カリモクのエクステンションテーブル。
最近はリバイバル品などもシリーズで出てますね。 ■■■
古い痛んだ状態で見ると、んんん?って感じでしたが、
きちんと手入れした後の状態を想像すると、結構いいかも!
あまりピカピカにはせずに、いい感じでリニューアルしてもらうことにして、
脚も座卓の高さにカットすることにしました。
実は物持ちのいいお父さんのお陰で、
こちらには魅力的な古物がたくさんありました。
そして見つけた!
「臼」
1本の木を刳り貫いてつくった小ぶりの臼です。
横に眠っていたのが、お父さんのお兄さんが作ったという無垢材のベンチ。
これは、使わない手はありません。
早速サンルームに置く家具に使用することにして、
くれぐれも廃棄しないようにとお伝えしておきました。
臼の中にちょっと飾れる炭やコケを入れて、
その上にガラスを置いてテーブルにしちゃいます。
こんな感じで。

サンルームでお茶でも飲みながら庭の緑を眺められる。
ちょっとしたカフェ~な空間を、つくっちゃおうと思います。
安暖亭の現場も、佳境に入ってまいりました。
前回お施主さんの希望で急遽範囲が広がった珪藻土仕上げも、
1階の壁と天井全面に施されました。
そしてキッチンも設置。
キッチンに関しては、お施主さんのお母さんご希望の色の中で、
全体的な部屋のイメージにあうものを選びました。
あまり主張しすぎずに、それでも色味が明るく爽やかなものです。
キッチンの床は淡いオレンジ系のタイル。
拭き掃除のし易い施釉タイル(ツヤのあるもの)で、
目地も油や調味料の汚れ等が目立たないように、
濃い茶系のものを使用しています。
実はワタクシ、自邸のキッチンでは濃い茶系のタイルに、
まっ白い目地を使用いたしました。
デザイン優先でそれに決めてしまったのですが、
やはりキッチンの油などの飛び跳ねはかなりのもので、
結構よごれが目立つんですね。
インスタントコーヒーの粉をこぼした日にゃ、
いっそのこと目地全面に刷り込んでやろうかと思いました。
なので、自邸での実験の失敗(とまではいきませんが、経験)を糧にして、
(何しろカラダ張って学習する建築士ですので。おほほ。)
今回はこういった取り合わせでタイルと目地を選びました。
更に正面奥の壁も他の部分と同じ仕上に見えますが、
実はここだけ珪藻土部分と同系色のビニルクロスです。
上から塗れるペンキや汚れを拭取れるタイルならよいのですが、
珪藻土の場合は汚れが付くとそのまま黒ずんで浸透していってしまうので、
念のため汚れを拭取れるクロスで仕上ました。
珪藻土の黄色っぽい壁と天井がキッチンにまで至ったので、
なんだか少しポップな感じもしつつ、明るく楽しそうなキッチンになりました。
吹き抜け部分も全面的に珪藻土が塗られました。
珪藻土のアップを撮ってみたけど、そのテクスチャー、
お分かりいただけるでしょうか。
今回は壁などの垂直面は横引きの仕上げ。
天井などの水平面は、木ゴテ押さえといって、仕上げの感じを変えています。
そしていよいよ 真打登場!
じゃじゃ~ん!!!
玄関格子扉です。
この扉。余計な金物が目立つのがいやだったので、
引き手部分(扉を引くための手が入るところ)まで
掘り込みになっています。
鍵の施錠用の金物だけはどうしても付いてしまいますが、
すごくすっきりと仕上げになりました。
ちゃんと裏表同じように格子がはいっています。
ありがとう~♪ 職人さんっ!
また一つ、名作が出来上がりました。
2階の吹き抜けに面する部分にも障子が入ります。
まだ障子紙を貼っていないので枠のみですが。
季節によって、冬の寒い時期には障子を閉めて、
夏は外してのびやかな空間と風の流れを取り込むなど、
臨機応変な使用ができるようになっています。
さて、仕上げ工事もあと少しとなった安暖亭。
ここに置く家具なども、今お父さんが色々検討中です。
実は先日ご相談を受けました。
新しいテーブルを買おうと思っていたが、他に色々そろえるものもあるし。
以前子供たちが家にいた大家族の頃に使っていたテーブルを、
リニューアルして使用できないだろうか・・・と。
早速業者さんと一緒に敷地内の物置を散策・・・物色?
見せていただいたテーブルは、
カリモクのエクステンションテーブル。
最近はリバイバル品などもシリーズで出てますね。 ■■■
古い痛んだ状態で見ると、んんん?って感じでしたが、
きちんと手入れした後の状態を想像すると、結構いいかも!
あまりピカピカにはせずに、いい感じでリニューアルしてもらうことにして、
脚も座卓の高さにカットすることにしました。
実は物持ちのいいお父さんのお陰で、
こちらには魅力的な古物がたくさんありました。
そして見つけた!
「臼」
1本の木を刳り貫いてつくった小ぶりの臼です。
横に眠っていたのが、お父さんのお兄さんが作ったという無垢材のベンチ。
これは、使わない手はありません。
早速サンルームに置く家具に使用することにして、
くれぐれも廃棄しないようにとお伝えしておきました。
臼の中にちょっと飾れる炭やコケを入れて、
その上にガラスを置いてテーブルにしちゃいます。
こんな感じで。
サンルームでお茶でも飲みながら庭の緑を眺められる。
ちょっとしたカフェ~な空間を、つくっちゃおうと思います。
生後三日目にして、
こんな風貌だった息子です。
「赤ちゃんなんて、生まれたてはみんなオヤジみたいな顔だよ」
よくそんな風に言われているのを聞いて、
「そうだよね」って、
自分に言い聞かせて約一年が経とうとしています。
だがしかし。
保育ママさんの所では、
「あれんたんの目は赤ちゃんの目じゃないよね~」と言われ。
遊びに来る友人達には、
「下から見上げられてるのに、
なんだか見下されているような気がする」 とか。
「中に絶対誰か入ってるでしょっ!」 とか。
言われ続ける回数は一向に減っていきません。
以前、本人に真面目に聞いてみたこともありました。
「あれんは本当は、
赤ちゃんのフリしたオヤジなんじゃないの?」 と。
その時の反応は、
「うっ。 やばい。 ちっ。」 って感じで、
決してワタシと目を合わせようとはしませんでした。
そんなオトコももうすぐ1歳。
更に眼光の鋭さには、
磨きがかかってきたような気がします。
この目は一体、
何を物語っているのでしょうか・・・
さて、オマケみたいなもんですが、
そんなオヤジ息子の母は更につわもので、
日々、調教にいそしんでおります。
そうじ嫌いなママの代わりに、そうじ好きなオトコになるように。
サボテンだって枯らしてしまうママの代わりに、
花の水遣り好きなオトコになるように。
そんな毎日ですが、
未だにワタシは「ママ」と呼ばれたことがありません。
昨日。
うちの母にたぶらかされて、
「ばーばっ!!!」
ときっぱり言い切ったあれんたん。
顔はオヤジでも、
世の中の道理ってもんが、
まるっきりわかっちゃいないオトコです。
昨日の仕事の帰り、
たくさんのお花を仕入れてまいりました。
今週のお花たちはこちら。

初夏の清清しい新緑色。
ダイスキな黄緑系のお花たちがいっぱい。
さっそく小分けにして家のあちこちに活けました。

ワタシがほぼ毎週のようにお花を買う習慣ができたのは、
初めて実家を離れて、
しかも何故か遥か彼方のイタリアで暮らした頃から。
当時まだ言葉もかたことで、友達も沢山はいなかったので、
近所に気に入ったお花屋さんをみつけて、
毎週お花を選んでお店のお兄さんにアレンジをしてもらいながら、
おしゃべりするのがとっても楽しかったのです。
「今日は何でくる?」
「そうくるか。ならばこうやってアレンジでどうよ?」
なんていうかけひきややりとりが面白くて、
毎週毎週通っているうちに、
いつの間にかお花が切れるととてもサミシク感じられるカラダになりました。
だから、
日本に戻ってから家を探して引越しを済ませ、
まず最初にしたことは、
気に入ったお花屋さん探し。
街の商店街をぶらぶらしながら、何軒かまわっているうちに、
見つけました。
気になる路地裏に。
ちょっと斜にかまえた感じの一軒。
その「ナナメ」な感じが、ワタシ好み。
中を覗けば、ますますそそられるお花ぞろえ。

それから何年経ちましたっけ?
6年、7年?
毎週お世話になっております。
花れんさん。■■■
今となっては、
我家には、なくてはならないお花屋さんです。
さて、毎週お花を買っているワタシですが、
実は以前から花器を物色中です。

いつか買おう。いつかいつか・・・
と思いつつ、ついついのびのびになっている花器探し。
探している間も、またたのし。
たくさんのお花を仕入れてまいりました。
今週のお花たちはこちら。
初夏の清清しい新緑色。
ダイスキな黄緑系のお花たちがいっぱい。
さっそく小分けにして家のあちこちに活けました。
ワタシがほぼ毎週のようにお花を買う習慣ができたのは、
初めて実家を離れて、
しかも何故か遥か彼方のイタリアで暮らした頃から。
当時まだ言葉もかたことで、友達も沢山はいなかったので、
近所に気に入ったお花屋さんをみつけて、
毎週お花を選んでお店のお兄さんにアレンジをしてもらいながら、
おしゃべりするのがとっても楽しかったのです。
「今日は何でくる?」
「そうくるか。ならばこうやってアレンジでどうよ?」
なんていうかけひきややりとりが面白くて、
毎週毎週通っているうちに、
いつの間にかお花が切れるととてもサミシク感じられるカラダになりました。
だから、
日本に戻ってから家を探して引越しを済ませ、
まず最初にしたことは、
気に入ったお花屋さん探し。
街の商店街をぶらぶらしながら、何軒かまわっているうちに、
見つけました。
気になる路地裏に。
ちょっと斜にかまえた感じの一軒。
その「ナナメ」な感じが、ワタシ好み。
中を覗けば、ますますそそられるお花ぞろえ。
それから何年経ちましたっけ?
6年、7年?
毎週お世話になっております。
花れんさん。■■■
今となっては、
我家には、なくてはならないお花屋さんです。
さて、毎週お花を買っているワタシですが、
実は以前から花器を物色中です。
いつか買おう。いつかいつか・・・
と思いつつ、ついついのびのびになっている花器探し。
探している間も、またたのし。
しばらく間があいておりましたが、
安暖亭の方は着々と、現場がすすんでいます。
連休中も大工さんが力作の家具を作ってくれて、設置・塗装も入りました。
今回の物件は床面積が大きくないので、限られたスペースを有効に活用する為、
造作の家具をちょこちょこと入れています。
但し、これを家具屋さんに発注してしまうと非常にコストが上がってしまうので、
出来る限りシンプルな機構を大工さんに作ってもらい、
扉を建具やさんに制作してもらうというかたちをとりました。
勿論、予算的にゆとりがあれば、
家具屋さんに発注して全て制作してもらうことで、
それに見合った素晴らしいものもできます。
こだわりどころをどこにもっていくか・・・によって、発注の仕方も変わってきます。
全体的なバランスが崩れないように。
例えばどこか一部だけがすごくゴージャスで、
他の一部がものすごく品祖な感じになってしまったりしないように、
いろいろと予算と仕上がりのバランスを考えながら、現場に指示を出していきます。
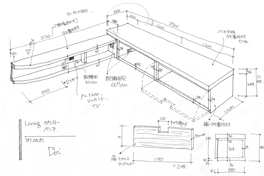
さて、そんな造作家具の内容は、こんな感じです。

まずは、リビングのTVカウンターとベンチ。
出窓下の壁が背もたれになって、座布団が4枚程敷ける幅と奥行きがあります。
ベンチ下にはミニコンポや生活雑貨をしまえるように収納になっています。
配線も全て事前に仕込んであり、扉が付けばそれが隠れるようになっています。
TVカウンターも薄型TVが置けて、
下段にはDVDデッキ類が置けるようになっています。
そしてスケッチが大工さんの手にかかるとこんな風に。

ぴたりっ!と納めてくれました。
ベンチの横にはちょっとした小物がしまえる電話台も制作。

これはリビングのベンチ側から上部が使えて、
玄関扉側から下部が使えるように出来ています。

建具やさんがこれにあわせて扉を制作してくれます。
更に下足入れも大工さんの力作で。

玄関側からは下足入れですが、この背面が階段になっているので、
実は階段踊り場の手摺代わりにもなっています。

4枚の開き扉が入りますが、そのうちの1枚は鏡の扉にしてもらい、
リビング側の部屋が映り込んで部屋が広く感じられるように、
また、出かける前の身だしなみのチェックもできるようになっています。
私の身長よりは高さがあるので、かなり収納量もありますが、
天井いっぱいまでいかず、
吹抜けに置いてあるので圧迫感も感じないようになっています。

こんな風に、造作家具は上手く使えば、
一粒で二度オイシイ 空間活用が広がっていきます。
貧乏性の設計者(ワタクシ)は、
この「一粒で二度オイシイ」に頭をひねるのが、
結構楽しかったりします。
さて、少し仕上の様子も見えてきました。
今回、リビングダイニングは床暖房対応のフローリングを使用しています。
幅広の材で、色は少し赤みがかった色。
カリンまでは濃くないですが、やわらかい赤系の板を使います。
そして壁は珪藻土。
色は黄色に近いクリーム色で、少し横引きのテクスチャーを出しています。

実は、この珪藻土の壁は当初外壁廻りのみとして、
部屋内の壁はペンキ塗り風のクロスの予定でした。
ところが、お施主さんのお父さんが仕上りをとても気に入ってくださって、
是非とも1階のお部屋全部を珪藻土にしたいとご連絡がありました。
全面がこの色だとちょっとどぎつくなってしまうのではないかと思いましたが、
私も今日現場に行って確認してみたところ、
とてもやわらかくてほっとするような仕上がりだったので、急遽変更に。
自分の好きな素材を使っていたのですが、
実物をお客様に気に入っていただけたのは、本当に嬉しいことでした。
2階は既にクロスを貼りおわっていたのでそのままで。

これも色は白っぽいですが、少し珪藻土風に見えるクロスなので、
落ち着いた感じに仕上ってきました。
ペンキ屋さんも入って、家具や建具枠に色が入りつつあります。
これはフローリングの色にあわせて少し赤みがかった木目の色を出しています。
赤と黄色系というと、かなりどぎつい印象になりそうですが、
彩度はそんなに高くないのと、自然素材を使用しているので、
そういったテクスチャーの柔らかさによって、全体的に色の強さを緩和しています。
甘くラブリーにはならず、ポップな感じでもなく、
あたたかくて若々しい感じがするけれど、でもどこかシックで落ち着く・・・
というギリギリのラインのところに着地できるように
もって行きたいなぁ~と思っているのですが。
果たしてどうなるでしょうか。
今後の建具やさんとペンキ屋さんの仕事にかかっています。
どきどきどき。
安暖亭の方は着々と、現場がすすんでいます。
連休中も大工さんが力作の家具を作ってくれて、設置・塗装も入りました。
今回の物件は床面積が大きくないので、限られたスペースを有効に活用する為、
造作の家具をちょこちょこと入れています。
但し、これを家具屋さんに発注してしまうと非常にコストが上がってしまうので、
出来る限りシンプルな機構を大工さんに作ってもらい、
扉を建具やさんに制作してもらうというかたちをとりました。
勿論、予算的にゆとりがあれば、
家具屋さんに発注して全て制作してもらうことで、
それに見合った素晴らしいものもできます。
こだわりどころをどこにもっていくか・・・によって、発注の仕方も変わってきます。
全体的なバランスが崩れないように。
例えばどこか一部だけがすごくゴージャスで、
他の一部がものすごく品祖な感じになってしまったりしないように、
いろいろと予算と仕上がりのバランスを考えながら、現場に指示を出していきます。
さて、そんな造作家具の内容は、こんな感じです。
まずは、リビングのTVカウンターとベンチ。
出窓下の壁が背もたれになって、座布団が4枚程敷ける幅と奥行きがあります。
ベンチ下にはミニコンポや生活雑貨をしまえるように収納になっています。
配線も全て事前に仕込んであり、扉が付けばそれが隠れるようになっています。
TVカウンターも薄型TVが置けて、
下段にはDVDデッキ類が置けるようになっています。
そしてスケッチが大工さんの手にかかるとこんな風に。
ぴたりっ!と納めてくれました。
ベンチの横にはちょっとした小物がしまえる電話台も制作。
これはリビングのベンチ側から上部が使えて、
玄関扉側から下部が使えるように出来ています。
建具やさんがこれにあわせて扉を制作してくれます。
更に下足入れも大工さんの力作で。
玄関側からは下足入れですが、この背面が階段になっているので、
実は階段踊り場の手摺代わりにもなっています。
4枚の開き扉が入りますが、そのうちの1枚は鏡の扉にしてもらい、
リビング側の部屋が映り込んで部屋が広く感じられるように、
また、出かける前の身だしなみのチェックもできるようになっています。
私の身長よりは高さがあるので、かなり収納量もありますが、
天井いっぱいまでいかず、
吹抜けに置いてあるので圧迫感も感じないようになっています。
こんな風に、造作家具は上手く使えば、
一粒で二度オイシイ 空間活用が広がっていきます。
貧乏性の設計者(ワタクシ)は、
この「一粒で二度オイシイ」に頭をひねるのが、
結構楽しかったりします。
さて、少し仕上の様子も見えてきました。
今回、リビングダイニングは床暖房対応のフローリングを使用しています。
幅広の材で、色は少し赤みがかった色。
カリンまでは濃くないですが、やわらかい赤系の板を使います。
そして壁は珪藻土。
色は黄色に近いクリーム色で、少し横引きのテクスチャーを出しています。
実は、この珪藻土の壁は当初外壁廻りのみとして、
部屋内の壁はペンキ塗り風のクロスの予定でした。
ところが、お施主さんのお父さんが仕上りをとても気に入ってくださって、
是非とも1階のお部屋全部を珪藻土にしたいとご連絡がありました。
全面がこの色だとちょっとどぎつくなってしまうのではないかと思いましたが、
私も今日現場に行って確認してみたところ、
とてもやわらかくてほっとするような仕上がりだったので、急遽変更に。
自分の好きな素材を使っていたのですが、
実物をお客様に気に入っていただけたのは、本当に嬉しいことでした。
2階は既にクロスを貼りおわっていたのでそのままで。
これも色は白っぽいですが、少し珪藻土風に見えるクロスなので、
落ち着いた感じに仕上ってきました。
ペンキ屋さんも入って、家具や建具枠に色が入りつつあります。
これはフローリングの色にあわせて少し赤みがかった木目の色を出しています。
赤と黄色系というと、かなりどぎつい印象になりそうですが、
彩度はそんなに高くないのと、自然素材を使用しているので、
そういったテクスチャーの柔らかさによって、全体的に色の強さを緩和しています。
甘くラブリーにはならず、ポップな感じでもなく、
あたたかくて若々しい感じがするけれど、でもどこかシックで落ち着く・・・
というギリギリのラインのところに着地できるように
もって行きたいなぁ~と思っているのですが。
果たしてどうなるでしょうか。
今後の建具やさんとペンキ屋さんの仕事にかかっています。
どきどきどき。
構造補強も済んだので、いよいよ下地のボードやコンパネを、
壁や天井・床などに貼っていきます。
木軸組みの上に→天井や外壁に面する壁のボードが貼られ
→更に内部の壁のボード、キッチンカウンターなども付きました。



キッチンカウンターの奥、窓が付いている壁は、
吊り戸や神棚がつくのでボードではなくコンパネといって合板で
下地が貼られています。
反対を向いてキッチン側から玄関やリビングの方を見ていくと、
隣の書斎との壁の間にコンセントボックスなど配線なども設置の上
→ボードが貼られてカウンタートップの天板も付きました。

このカウンターは、上の段は水がかかってもよいポストフォーム。
食事をする為の下のカウンターは集成材で後から塗装で仕上ます。

カウンター奥の壁にもコンセントが見えます。
湯沸しポットが置かれたりしてもいいように・・・などなど、
使い易い位置にこういったアウトレットも考えつつ設置していきます。
階段も出来上がってきました。

実は階段を解体した後、しばらくは皆ハシゴで二階に上り下りしていたので、
スカート姿で現場監理に行っていたワタクシは、
職人さんたちに非常にご迷惑をおかけいたしました。
さぞかし皆さん、ほっとしていることと思います・・・
何度もお見苦しいモノをお見せ致しましてスミマセン。
階段の踏面(ふみづら)と蹴上(けあげ)も、以前のものよりゆったりと登れる
ように変更してあります。
この手前に下足入れが後ほど設置されます。
今回は、収納量優先にしたので、少しボリュームのある下足入れが入りますが、
別の事例では、このままオープンでもいいかなと思います。
実はよくベンチ代わりにこの階段に座って、
お施主さんのお父さんが職人さん達と談笑されています。
そういう姿を見ると、なんとなく人が集まり易い高さやスペースって、
あるんだなぁ・・・と感じます。
更にこの階段を登って途中からリビングやキッチンの方を見下ろすと
こんな感じです。

写真では上の部分が移っていませんが、吹抜け部分も含むと、
とてもゆったりとした、ボリューム感のあるスペースになっています。
階段も、ただの移動の通路としてだけではなく、
様々な工夫次第でいろんな可能性を秘めた、面白いアイテムだと思います。
では、次に二階から1階のリビングとエントランス部分を見下げてみます。

古い梁の下に大きな梁が入っています。
火打ち材(斜めの材)は新しい材に交換して、後に塗装で木肌を見せて仕上ます。
太い梁は全体に巻き込んでクロスで仕上ます。
下から見上げるとこんな感じ。

二階のトップライトも新しいものに交換されて
→ボードが貼られて新しい障子の枠も入りました。


二階のベッドルームは、一番低いところは立てないくらいの高さですが、
屋根の勾配が急勾配なので、一番高いところはかなり天井高さがあります。
勾配天井でこれだけの高さがとれれば、非常に気持ちがいいです。
但し、一番高い部分だけは照明器具を取り付けるために平らに天井を貼りました。
柱の足下に、テーブルの高さのカウンターもつきました。
反対側を見ると、右手トップライト下の部分の床が増設されています。

以前はここが吹抜けになっていたので、部屋としてのまとまった面積がとれず、
非常に使いずらくなっていました。
今回はこちらの床が増えたので、
ベッドを置いても足下にゆとりのスペースがとれます。
低めのチェストやTV台くらいは置けるようになりました。
と、こんな風に現場はすすんでいます。
ここまで来ると、だんだん出来上がりが想像できて、
お施主さんも以前と比べて随分広く感じられるようになったと喜んでおられました。
でも今はまだボード貼りの段階なので、これから仕上げが施されていくと、
光の反射や色の効果で、更に更に広さと明るさが感じられるようになると思います。
内装に関しては、ベースは少し柔らかい白を使いますが、
いかんせんこのワタクシが携わっておりますので、個性的なお父さんと一緒に,
ちょっとアクセントの色とテクスチャーを選んで盛り込んでいます。
どんな風に仕上っていくのか・・・
ワクワクしながら、また現場に足を運びたいと思います。
壁や天井・床などに貼っていきます。
木軸組みの上に→天井や外壁に面する壁のボードが貼られ
→更に内部の壁のボード、キッチンカウンターなども付きました。
キッチンカウンターの奥、窓が付いている壁は、
吊り戸や神棚がつくのでボードではなくコンパネといって合板で
下地が貼られています。
反対を向いてキッチン側から玄関やリビングの方を見ていくと、
隣の書斎との壁の間にコンセントボックスなど配線なども設置の上
→ボードが貼られてカウンタートップの天板も付きました。
このカウンターは、上の段は水がかかってもよいポストフォーム。
食事をする為の下のカウンターは集成材で後から塗装で仕上ます。
カウンター奥の壁にもコンセントが見えます。
湯沸しポットが置かれたりしてもいいように・・・などなど、
使い易い位置にこういったアウトレットも考えつつ設置していきます。
階段も出来上がってきました。
実は階段を解体した後、しばらくは皆ハシゴで二階に上り下りしていたので、
スカート姿で現場監理に行っていたワタクシは、
職人さんたちに非常にご迷惑をおかけいたしました。
さぞかし皆さん、ほっとしていることと思います・・・
何度もお見苦しいモノをお見せ致しましてスミマセン。
階段の踏面(ふみづら)と蹴上(けあげ)も、以前のものよりゆったりと登れる
ように変更してあります。
この手前に下足入れが後ほど設置されます。
今回は、収納量優先にしたので、少しボリュームのある下足入れが入りますが、
別の事例では、このままオープンでもいいかなと思います。
実はよくベンチ代わりにこの階段に座って、
お施主さんのお父さんが職人さん達と談笑されています。
そういう姿を見ると、なんとなく人が集まり易い高さやスペースって、
あるんだなぁ・・・と感じます。
更にこの階段を登って途中からリビングやキッチンの方を見下ろすと
こんな感じです。
写真では上の部分が移っていませんが、吹抜け部分も含むと、
とてもゆったりとした、ボリューム感のあるスペースになっています。
階段も、ただの移動の通路としてだけではなく、
様々な工夫次第でいろんな可能性を秘めた、面白いアイテムだと思います。
では、次に二階から1階のリビングとエントランス部分を見下げてみます。
古い梁の下に大きな梁が入っています。
火打ち材(斜めの材)は新しい材に交換して、後に塗装で木肌を見せて仕上ます。
太い梁は全体に巻き込んでクロスで仕上ます。
下から見上げるとこんな感じ。
二階のトップライトも新しいものに交換されて
→ボードが貼られて新しい障子の枠も入りました。
二階のベッドルームは、一番低いところは立てないくらいの高さですが、
屋根の勾配が急勾配なので、一番高いところはかなり天井高さがあります。
勾配天井でこれだけの高さがとれれば、非常に気持ちがいいです。
但し、一番高い部分だけは照明器具を取り付けるために平らに天井を貼りました。
柱の足下に、テーブルの高さのカウンターもつきました。
反対側を見ると、右手トップライト下の部分の床が増設されています。
以前はここが吹抜けになっていたので、部屋としてのまとまった面積がとれず、
非常に使いずらくなっていました。
今回はこちらの床が増えたので、
ベッドを置いても足下にゆとりのスペースがとれます。
低めのチェストやTV台くらいは置けるようになりました。
と、こんな風に現場はすすんでいます。
ここまで来ると、だんだん出来上がりが想像できて、
お施主さんも以前と比べて随分広く感じられるようになったと喜んでおられました。
でも今はまだボード貼りの段階なので、これから仕上げが施されていくと、
光の反射や色の効果で、更に更に広さと明るさが感じられるようになると思います。
内装に関しては、ベースは少し柔らかい白を使いますが、
いかんせんこのワタクシが携わっておりますので、個性的なお父さんと一緒に,
ちょっとアクセントの色とテクスチャーを選んで盛り込んでいます。
どんな風に仕上っていくのか・・・
ワクワクしながら、また現場に足を運びたいと思います。
構造下地などに関しては、
特に念入りに写真などで記録を残しておきます。
改修工事の場合、設計段階では見込みきれないような、
蓋を開けてみないとわからない構造材や配管の腐朽などもあります。
きちんと補修や補強、腐朽が激しい場合は新しい材に交換しないと、
危険な状態だったりもします。
そしてそういった下地の状況は、後にボードを貼って仕上げてしまえば、
中がどうなっているかは見えなくなってしまいます。
なので、後からお客様とのトラブルを防ぐ為にも、
きっちりと施工した記録を残しておくことは、とても大切なことです。
我々設計者は、お客様と施工業者との間に立つ、
最も中立的な立場です。
そしてこういったベーシックなことを、きちんとやることが、
お客様にとっても、施工者にとっても、設計者にとっても、
誰もが最終的にいい気持ちで引渡しできることにつながると思います。
昨今、様々な悪質な業者や設計者などのことも取り上げられたりしていますが、
少なくとも私の周囲の仕事人たちは、皆、つくることが好きな人間が殆どです。
いいものができて、お客様に喜んでもらえることが嬉しくもあり、誇りでもある。
そしてそれに対して相応のフィーをいただく。
非常にシンプルなことですが、それが、業界全体を通して、
うまく機能していないことも沢山あるように感じます。
これに関しては、需要の側も供給の側も、
共に成長するべき時代になってきていると、個人的には感じるのですが、
ちょっと横道にそれましたので、また改めて・・・
特に念入りに写真などで記録を残しておきます。
改修工事の場合、設計段階では見込みきれないような、
蓋を開けてみないとわからない構造材や配管の腐朽などもあります。
きちんと補修や補強、腐朽が激しい場合は新しい材に交換しないと、
危険な状態だったりもします。
そしてそういった下地の状況は、後にボードを貼って仕上げてしまえば、
中がどうなっているかは見えなくなってしまいます。
なので、後からお客様とのトラブルを防ぐ為にも、
きっちりと施工した記録を残しておくことは、とても大切なことです。
我々設計者は、お客様と施工業者との間に立つ、
最も中立的な立場です。
そしてこういったベーシックなことを、きちんとやることが、
お客様にとっても、施工者にとっても、設計者にとっても、
誰もが最終的にいい気持ちで引渡しできることにつながると思います。
昨今、様々な悪質な業者や設計者などのことも取り上げられたりしていますが、
少なくとも私の周囲の仕事人たちは、皆、つくることが好きな人間が殆どです。
いいものができて、お客様に喜んでもらえることが嬉しくもあり、誇りでもある。
そしてそれに対して相応のフィーをいただく。
非常にシンプルなことですが、それが、業界全体を通して、
うまく機能していないことも沢山あるように感じます。
これに関しては、需要の側も供給の側も、
共に成長するべき時代になってきていると、個人的には感じるのですが、
ちょっと横道にそれましたので、また改めて・・・
カレンダー
| 12 | 2026/01 | 02 |
| S | M | T | W | T | F | S |
|---|---|---|---|---|---|---|
| 1 | 2 | 3 | ||||
| 4 | 5 | 6 | 7 | 8 | 9 | 10 |
| 11 | 12 | 13 | 14 | 15 | 16 | 17 |
| 18 | 19 | 20 | 21 | 22 | 23 | 24 |
| 25 | 26 | 27 | 28 | 29 | 30 | 31 |
最新記事
(08/16)
(05/29)
(05/27)
(05/22)
(04/13)
(04/10)
(02/25)
(09/12)
(09/11)
(08/31)
カテゴリー
ブログ内検索
アーカイブ
最新コメント
プロフィール
HN:
masu
年齢:
56
性別:
女性
誕生日:
1969/09/27
職業:
一級建築士
趣味:
しばらくおあづけ状態ですが、スケッチブック片手にふらふらする一人旅
自己紹介:
世田谷で、夫婦二人の一級建築士事務所をやっています。新築マンションからデザインリフォーム等をはじめ、様々な用途の建築物の設計に携わっています。基本呑気な夫婦で更新ペースもぬるーく、更新内容も仕事に限らずゆるーく、でもていねいに、綴っています。
mail
お問い合わせ、メールはこちらへ masumka19690927@me.com
リンク
フリーエリア
