ノイファイミリーの日常、息子の成長など・・・
×
[PR]上記の広告は3ヶ月以上新規記事投稿のないブログに表示されています。新しい記事を書く事で広告が消えます。
工事が始まって、まずは既存のものを撤去していきます。
今回は大幅に間取りも変更になる為、解体・撤去作業も大々的。
残せる部材は残しますが、腐朽が激しいものなどは、
撤去して新たに新設したり、金物で補強を入れたりして、作業がすすみます。
同じアングル(玄関側から北側書斎方向を見る)で追っていくと、

解体後→構造材新設(柱や筋交いなど)→外壁とサッシも交換の上下地設置
という流れが見えるかと思います。
リビング上部の吹抜け部分も、

二階の床と壁解体前→撤去後
とこんな風に、吹抜けが広がって、空間がのびやかになりました。
正面に太い新しい梁が入っているのが見えます。

トップライトも開閉型に交換されて、
吹抜けに面して新たに腰壁が設置されました。
これで2階にいても、なんとなく下の階とつながりを感じられます。

危険だった階段も勿論全て撤去。
何と少しでも広さを稼ぐ為に、柱を欠きこんでありました。
柱ごと、添え柱を加えて補強します。

小さくて使いずらかった浴室とトイレの壁も撤去。
納戸部分まで水周りスペースとして使います。
このように、適宜補強を入れながら、
全くこれまでと違った間取りが完成されていきます。
きっちりと構造の為の予算を組んで配慮しながら設計すれば、
木造は非常に自由度の高いリフォーム工事が可能となります。
今回は大幅に間取りも変更になる為、解体・撤去作業も大々的。
残せる部材は残しますが、腐朽が激しいものなどは、
撤去して新たに新設したり、金物で補強を入れたりして、作業がすすみます。
同じアングル(玄関側から北側書斎方向を見る)で追っていくと、
解体後→構造材新設(柱や筋交いなど)→外壁とサッシも交換の上下地設置
という流れが見えるかと思います。
リビング上部の吹抜け部分も、
二階の床と壁解体前→撤去後
とこんな風に、吹抜けが広がって、空間がのびやかになりました。
正面に太い新しい梁が入っているのが見えます。
トップライトも開閉型に交換されて、
吹抜けに面して新たに腰壁が設置されました。
これで2階にいても、なんとなく下の階とつながりを感じられます。
危険だった階段も勿論全て撤去。
何と少しでも広さを稼ぐ為に、柱を欠きこんでありました。
柱ごと、添え柱を加えて補強します。
小さくて使いずらかった浴室とトイレの壁も撤去。
納戸部分まで水周りスペースとして使います。
このように、適宜補強を入れながら、
全くこれまでと違った間取りが完成されていきます。
きっちりと構造の為の予算を組んで配慮しながら設計すれば、
木造は非常に自由度の高いリフォーム工事が可能となります。
PR
お施主さんからの許可がでましたので、
これから少しずつ今の現場が完成するまでの様子を
ご紹介しようと思います。
今回の工事は木造2階建ての全面改修工事。
既に子供さん達も独立されたご夫妻お二人のお住まいです。
まずは本題に入る前に、
この建物のニックネームをご紹介。
「安暖亭 andan-tei」
と、こちらでは呼ばせてもらうことにします。
気持ちが安らいでゆったりとくつろげる、
暖かい空間となりますように・・・という願いを込めて。
「歩くようなゆっくりとしたテンポで」を意味するandante(アンダンテ)
も、もじってみました。
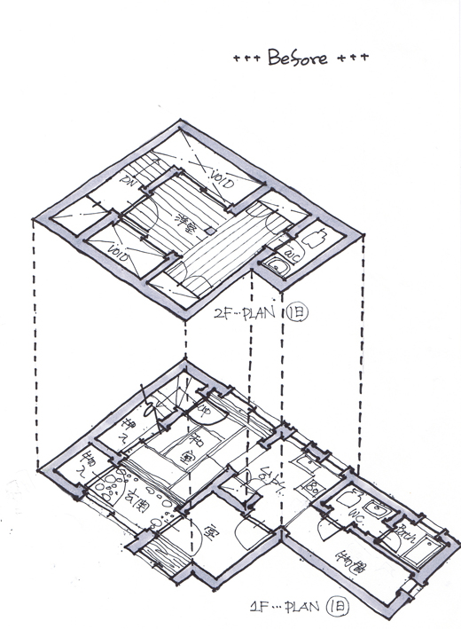
では、さっそく既存の状態の図面と写真をご紹介。
ちまたで言われる「ビフォー・アフター」の、ビフォー状態です。

古い建物で、長いこと使われていなかったこともあり、
かなり荒れています。
建物は、使わないとどんどん痛んでいくんですね。
更に、これから高齢になっていくご夫婦が住まう空間としてみると、
問題点も沢山ありました。
①和室のレベルが450mm程玄関や台所より上がっており、
天井も低く使いずらい。

②狭い建物内を細かく仕切っている為、余計に圧迫感を感じる。
③南側の一番恵まれた部分が玄関と個室になって自然光が入らない。
④キッチンも暗く小さくて使いずらい。

⑤トイレ・浴室も小さく使いずらい。

⑥狭くて急勾配の危険な階段。手摺もなし。

⑦2階の家具の配置のしずらい不便な間取りと邪魔な柱。

⑧2階のトップライトが開閉できず、夏は暑く冬は寒い。
などなど。
ざっとあげただけでもこれだけの問題点がありました。
建物の面積を広げることには限りがあるので、
ある程度決まった範囲の中で、これらの問題をクリアして、
どれだけ快適な家に近づけられるか・・・
お客様との打合せを重ねて、色々と検討していった結果。
出来上がったプランはこのようになりました。

①和室のレベルが450mm程玄関や台所より上がっており、
天井も低く使いずらい。
→和室下に廻っていた布基礎を壊して、一面土間コンクリート敷の上に床を設置。
家全体のレベル差をなくす。
②狭い建物内を細かく仕切っている為、余計に圧迫感を感じる。
→強度に問題の出ない範囲で間仕切り壁撤去。
オープンな間取りに。
③ 南側の一番恵まれた部分が玄関と個室になって自然光が入らない。
→南側にリビングを配置。
一番恵まれた位置に一番長く過ごす場所を。
④ キッチンも暗く小さくて使いずらい。
→キッチンも移設。対面式キッチンで家全体・更には庭も見渡せる位置に。
⑤ トイレ・浴室も小さく使いずらい。
→浴室のサイズを大きく。機能的な配置のパウダールームに。
⑥ 狭くて急勾配の危険な階段。手摺もなし。
→上り下りが楽しくなるような吹抜けを抱いた階段。
心理的負担を軽減しながら、勾配もゆるく上りやすく。勿論手摺も設置。
⑦ 2階の家具の配置のしずらい不便な間取りと邪魔な柱。
→分散された吹抜けを南側にひとまとめにして、2階の部屋を使い易く。
独立柱を抱き込むようにカウンターを設置して、ワークスペースに。
⑧ 2階のトップライトが開閉できず、夏は暑く冬は寒い。
→南北両面屋根につくトップライトは開閉できるものに。
吹抜け天井に換気シーリングも設置して、
風の流れをつくります。
と、こんな風に解決策を考えながら、現場に入りました。
では、これから少しずつ、
この現場がどうやって完成に近づいていくかを、
ご報告していこうかと思います。
これから少しずつ今の現場が完成するまでの様子を
ご紹介しようと思います。
今回の工事は木造2階建ての全面改修工事。
既に子供さん達も独立されたご夫妻お二人のお住まいです。
まずは本題に入る前に、
この建物のニックネームをご紹介。
「安暖亭 andan-tei」
と、こちらでは呼ばせてもらうことにします。
気持ちが安らいでゆったりとくつろげる、
暖かい空間となりますように・・・という願いを込めて。
「歩くようなゆっくりとしたテンポで」を意味するandante(アンダンテ)
も、もじってみました。
では、さっそく既存の状態の図面と写真をご紹介。
ちまたで言われる「ビフォー・アフター」の、ビフォー状態です。
古い建物で、長いこと使われていなかったこともあり、
かなり荒れています。
建物は、使わないとどんどん痛んでいくんですね。
更に、これから高齢になっていくご夫婦が住まう空間としてみると、
問題点も沢山ありました。
①和室のレベルが450mm程玄関や台所より上がっており、
天井も低く使いずらい。
②狭い建物内を細かく仕切っている為、余計に圧迫感を感じる。
③南側の一番恵まれた部分が玄関と個室になって自然光が入らない。
④キッチンも暗く小さくて使いずらい。
⑤トイレ・浴室も小さく使いずらい。
⑥狭くて急勾配の危険な階段。手摺もなし。
⑦2階の家具の配置のしずらい不便な間取りと邪魔な柱。
⑧2階のトップライトが開閉できず、夏は暑く冬は寒い。
などなど。
ざっとあげただけでもこれだけの問題点がありました。
建物の面積を広げることには限りがあるので、
ある程度決まった範囲の中で、これらの問題をクリアして、
どれだけ快適な家に近づけられるか・・・
お客様との打合せを重ねて、色々と検討していった結果。
出来上がったプランはこのようになりました。
①和室のレベルが450mm程玄関や台所より上がっており、
天井も低く使いずらい。
→和室下に廻っていた布基礎を壊して、一面土間コンクリート敷の上に床を設置。
家全体のレベル差をなくす。
②狭い建物内を細かく仕切っている為、余計に圧迫感を感じる。
→強度に問題の出ない範囲で間仕切り壁撤去。
オープンな間取りに。
③ 南側の一番恵まれた部分が玄関と個室になって自然光が入らない。
→南側にリビングを配置。
一番恵まれた位置に一番長く過ごす場所を。
④ キッチンも暗く小さくて使いずらい。
→キッチンも移設。対面式キッチンで家全体・更には庭も見渡せる位置に。
⑤ トイレ・浴室も小さく使いずらい。
→浴室のサイズを大きく。機能的な配置のパウダールームに。
⑥ 狭くて急勾配の危険な階段。手摺もなし。
→上り下りが楽しくなるような吹抜けを抱いた階段。
心理的負担を軽減しながら、勾配もゆるく上りやすく。勿論手摺も設置。
⑦ 2階の家具の配置のしずらい不便な間取りと邪魔な柱。
→分散された吹抜けを南側にひとまとめにして、2階の部屋を使い易く。
独立柱を抱き込むようにカウンターを設置して、ワークスペースに。
⑧ 2階のトップライトが開閉できず、夏は暑く冬は寒い。
→南北両面屋根につくトップライトは開閉できるものに。
吹抜け天井に換気シーリングも設置して、
風の流れをつくります。
と、こんな風に解決策を考えながら、現場に入りました。
では、これから少しずつ、
この現場がどうやって完成に近づいていくかを、
ご報告していこうかと思います。
相変わらず。
ぱ・ぱ。
ぱ・ぱ・ぱ・ぱ・ぱ。
は、はっきり言えるあれんたんですが、
どんなに仕込んでも、
未だ ま・ま はありません。
時々思わせぶりに、
んま・んま!
はありますが、
それはどう見ても、前後文脈から言って、
食い物の事を指してるとしかいえません。
でもいいんです。
ふふふ。
ママは既に次の手を考えつきました。
ぱぱ の次の単語を仕込むことにしたんです。
「ぱ・ぱ。 うんち」
「ぱ・ぱ。 ちっち」
「ぱ・ぱ。 んまんま」
「ぱ・ぱ。 あそぼ」
おっほほほほほっ。
「必殺ご指名攻撃」デス。
我が子がかわいいパパが、子供にそう言われて、
その要求に応えられないワケがない。
全国のパパと先に呼ばれて唇をかんだママさ~ん。
頭を切り替えて、
さっそくこの「プランB」に着手してください。
さて、プランB
果たしてうまくいくでしょうか・・・
ぱ・ぱ。
ぱ・ぱ・ぱ・ぱ・ぱ。
は、はっきり言えるあれんたんですが、
どんなに仕込んでも、
未だ ま・ま はありません。
時々思わせぶりに、
んま・んま!
はありますが、
それはどう見ても、前後文脈から言って、
食い物の事を指してるとしかいえません。
でもいいんです。
ふふふ。
ママは既に次の手を考えつきました。
ぱぱ の次の単語を仕込むことにしたんです。
「ぱ・ぱ。 うんち」
「ぱ・ぱ。 ちっち」
「ぱ・ぱ。 んまんま」
「ぱ・ぱ。 あそぼ」
おっほほほほほっ。
「必殺ご指名攻撃」デス。
我が子がかわいいパパが、子供にそう言われて、
その要求に応えられないワケがない。
全国のパパと先に呼ばれて唇をかんだママさ~ん。
頭を切り替えて、
さっそくこの「プランB」に着手してください。
さて、プランB
果たしてうまくいくでしょうか・・・
せっかくなので、ちょっと建築的なおはなしでも。
そうです。
好きなんです。
格子戸が。
いや、格子戸限定・・・というわけでもなく、
影を介してその向こうの光が見える情景のチラリズムが、
何とも言えずにすきなんです。
なので、イスラム建築の回廊に廻っている透かし彫りとか、
透けるレースのカーテンで仕立てのいい生地のものとか、
はたまた木漏れ日でさえも、惹かれてたまりません。
そんなワタクシですので、
思いっきり自分の趣味を注ぎ込める自邸の設計で、
こんな建具をつくってしまいました。
寝室とリビングをそれとなく仕切る、組小細工の建具です。
建具の組子越しに、その向こうの寝室の穴倉のような壁の色がのぞけます。
夜になってリビングの照明を落とし、寝室側の照明を灯すと、
この部屋全体が鳥かごランプのようになって、
リビングの壁に格子の影模様を映しこみます。
こういった演出が、
実にエロさがあって好きなんですね。
別にエロエロ気分になりたいわけじゃなくて、
デザイン自体に何かエロさというか、艶っぽさがあるものに、
いいなぁ~といつも惹かれます。
寝室側から見ても、完全に空間をシャットアウトしていないので、
程よい包まれ感と落ち着きを維持しつつ、圧迫感も感じすぎないような、
なーんか落ち着く空間となっています。
と、手前味噌っぽく色々書いておりますが、
実はこの建具、何が素晴らしいって、
制作してくださった建具職人さんの仕事が見事なんです。
組子細工と言って、クギなどを一切使用していない職人技。
全て木(もく)の凸と凹を組み合わせて、ぴたり!と納めています。
今の時代、これだけの匠の技を使って建具を造ってくれる職人さんを
探すこと自体が大変です。
設計者なんて気楽に線ひきますからね~。
「こ~んな建具が欲しいの!」
なぁ~んて。軽々しく言ってみちゃったりして。(ワタシのことです)
そんなワケで、この現場の時も、
業者さんはかなり頭をかかえていたようです。
さりげな~く、もっと単純につくれそうな格子戸を奨められたりもして・・・
でもこれだけは。
絶対に譲れませんでした。
ワタシの石のような意志が、絶対に曲がらなそうだな~と感じた業者さんは、
いろいろ検討して、今回のこの建具を制作してくださった建具やさんを、
連れてきてくれました。
実は、
そこからが大変でした。
建具やさん、がぜんやる気満々になっちゃった!
何しろ最近じゃ、こんな風に建具に凝ったデザインをする要求もあまりなく、
フラッシュ戸といって一枚板に木目が印刷されたシートを
貼り付けるようなものばかり。
そこにこんなどうやって造るんだかわけもわからない建具の注文です。
ぼぼぼっ! ぼぼぼぼぼっ!
職人魂に火がついた!
聞く所によると、その建具やさんにいた職人さんは、
かつて総理大臣賞だかなんだかをとったこともある大ベテラン。
「これは絶対自分がつくりあげてみせる!」
と、無我夢中になって利益も省みず取り組んでくださったそうです。
いやはや申し訳ない・・・
でも、そんな風にやる気を掻き立てるようなものをデザインに盛り込むことができて、
なんだか設計したワタシも最高に嬉しかったです。
出来上がったものはこの通り。
家族全員どころか、訪れる人たち皆が感動してくれる建具となりました。
後日談で、この建具を作ってくれた職人さんは、
「あんときゃもう夢中でつくりあげたが、
今同じものをつくれといわれたら、どうやっていいのかわからない・・・」
と語っていたそうです。
恐るべし。
勢いのチカラ。
実はこの建具が大変好評だったので、
今動いている現場でも、同じ建具やさんにまたちょっと
頑張ってもらうことになりました。
いや、ちょっと頑張ってもらうなんて簡単に言ってますがね。
今回の建具もこんなイメージです。
実は、この格子のデザインを玄関扉に使いたいと思っているのですが、
木製建具はあまり厚くなりすぎてしまうと重くて開閉が不便。
かといってちゃちな材を使ってしまうと
すぐに木があばれて反ってしまうという、
非常に難しい問題があります。
納まりを考えていて、おそらくこれはどちらか一面だけに格子が入り、
裏面はガラスを押し縁という木の縁で押えるくらいしか
できないだろうと思っていました。
打合せでそう伝えると、建具やさんからNO!が。
「これだけの建具をつくるのに、裏に格子がないなんてみっともない!
これは裏表格子をつくってその間にガラスをはめ込みます。
納まりは戻ってちょっと検討してみますから!」
はい。
お任せします。
モチは餅屋です。
しかも前回あれだけの仕事をしてくださった建具やさんです。
絶大なる信頼と多大な期待を込めて、
どんな風に仕上がりになるのかを、おそらく一番誰よりも(施主よりも)
ワクワクしながら、
待っていようと思います。
を、仕込みました。
あれんたんに。
先日ママに哺乳瓶でミルクをくれるようになった彼ですが、
あれから更にパワーアップ。
時にバンバンぶたれたり、髪の毛引っ張られたりもしてきましたが、
最近は大分上達して、
上手に 「いいこ いいこ」 してくれます
知ってますか~?
赤ちゃんのてのひらって、
つ~るつる の す~べすべ。
なでられると、
すっご~~~く、
気持ちいいんです。
なので、「いいこいいこできるんだね~。すごいね~!」とか、
「あれんにいいこいいこしてもらうと、きもちいいね~」とか、
さんっざんおだてまくって、
癒されまくってます。 うふふっ♪
最近お疲れのアナタ!
ご希望とあらば、貸し出しいたしますよん♪
そういえば、子供の頃ワタシの弟にも、
「今日は美容院ごっこしよ~!」と、うまいこと話をもちかけて、
弟を美容師さんにしたてて、ブラシでずぅっと髪の毛とかしてもらったりしてました。
人に髪の毛とかしてもらうのって、
気持ちいいじゃぁないですか。
あの時も「嬉しいナァ~。上手だなぁ~。」と弟をおだてまくって、
気が済むまで髪をとかしてもらっていたのを思い出しました。
昔っから、
「コドモとオトコはおだてて使え!」を、
実践してきたワタクシなのであります。
あれんたんに。
先日ママに哺乳瓶でミルクをくれるようになった彼ですが、
あれから更にパワーアップ。
時にバンバンぶたれたり、髪の毛引っ張られたりもしてきましたが、
最近は大分上達して、
上手に 「いいこ いいこ」 してくれます
知ってますか~?
赤ちゃんのてのひらって、
つ~るつる の す~べすべ。
なでられると、
すっご~~~く、
気持ちいいんです。
なので、「いいこいいこできるんだね~。すごいね~!」とか、
「あれんにいいこいいこしてもらうと、きもちいいね~」とか、
さんっざんおだてまくって、
癒されまくってます。 うふふっ♪
最近お疲れのアナタ!
ご希望とあらば、貸し出しいたしますよん♪
そういえば、子供の頃ワタシの弟にも、
「今日は美容院ごっこしよ~!」と、うまいこと話をもちかけて、
弟を美容師さんにしたてて、ブラシでずぅっと髪の毛とかしてもらったりしてました。
人に髪の毛とかしてもらうのって、
気持ちいいじゃぁないですか。
あの時も「嬉しいナァ~。上手だなぁ~。」と弟をおだてまくって、
気が済むまで髪をとかしてもらっていたのを思い出しました。
昔っから、
「コドモとオトコはおだてて使え!」を、
実践してきたワタクシなのであります。
数日前の記事で、こんなのがありました。
■■■
女性の起業家は、事業を立ち上げるフットワークが軽い分、廃業の率も高いとな。
確かに。
フットワークは、本っ当に軽かったです。ワタクシ。
そもそも、準備とか、検討とか、吟味とか、分析とか、
そういう類からは一番かけ離れた人間かもしれません。
常に感情・インスピレーション・感覚が、決断の原動力。
いや、決断どころか、
「とりあえず、やってみる?」って感じで、
始めちゃってから後にも引けず、もがいてどつぼにとっぴんしゃん!
それで得たものも多いですが、
直接的には得られなかったものの方が多分多いと思います。
かなーり色んなものを、散財してきたような・・・
何事も、
スタートからしばらくは調子いいんですね。
精神的にも体力的にも状況的にも、
いろんな意味で勢いがついてるから、
それによって追い風に乗ったような気にもなる。
周囲も最初だからと応援してくれるのでそういう恩恵も授かれる。
そんな加速もついてひゅーいひゅい♪
問題はそこから先です。
あれ。
あれれれれ。
こんなはずでは・・・ てか、
なんでこんなこと、
始めちゃったワケ?
と、ふと我に返る瞬間が訪れます。
本当にそこで初めて、
自分が始めちゃったことの大きさとその先の壁の厚さに直面して、
ただただ呆然。
(ここに来るまでそれに気付かない自分にも、呆然)
どうするよ。自分!
まぁ、例を挙げればきりがないのですが、
こういう状況が過去に数え切れないほどありました。
でも、唯一今の仕事に関してだけは、
ずぅっと一環してぶれずにきた思いがあります。
それは、
「絶対に看板はおろさない」
ということ。
仕事がなくって事務所としてやっていくのがしんどくなった時も、
雇われの身で同じ仕事をやることもできたけれど。
子供ができて家事と育児をこなしながらの専門職で、
くぅう!今しかないカワイイ子供との時間が少ない~!
いいのか?自分!
と葛藤する気持ちが湧き上がるときも。
ワタシは、続ける。
これだけは。
そう思って、今まできています。
今の時代、終身雇用なんて言葉も存在感がなくなって、
仕事を辞めるも変るもずっと軽くなってきているけれど、
そんな中、自営業こそ自由で軽~い印象ももたれるけれど、
何を隠そう。
もっともコッテコテの、
終身雇用です。
自分が自分で看板を降ろさない限り。
自分自身で雇い続けるんです。自分を。
そして、自分を雇い続けるために、
来た仕事を一生懸命やるんです。
文句たらたら言いながらも。
一度看板を降ろしてしまえば、
再び・・・ということは、更に更にハードルが高くなります。
ここまで、しんどいときに助けてくれた周囲の人たちからも、
大きな信頼を失うことになってしまいます。
これまでお仕事をもらえてきたのは、
そこにいつもこの看板があったから。
6年間続けてきて思うのは、
続けてきたからこそ今がある ってことでした。
ふにゃふにゃの意志の固さと、
とろとろの脳みその思考回路を持つワタシですが、
これだけは、ずぅっと変らずにいようと思います。
世田谷に、
Atelier MASU あり!
■■■
女性の起業家は、事業を立ち上げるフットワークが軽い分、廃業の率も高いとな。
確かに。
フットワークは、本っ当に軽かったです。ワタクシ。
そもそも、準備とか、検討とか、吟味とか、分析とか、
そういう類からは一番かけ離れた人間かもしれません。
常に感情・インスピレーション・感覚が、決断の原動力。
いや、決断どころか、
「とりあえず、やってみる?」って感じで、
始めちゃってから後にも引けず、もがいてどつぼにとっぴんしゃん!
それで得たものも多いですが、
直接的には得られなかったものの方が多分多いと思います。
かなーり色んなものを、散財してきたような・・・
何事も、
スタートからしばらくは調子いいんですね。
精神的にも体力的にも状況的にも、
いろんな意味で勢いがついてるから、
それによって追い風に乗ったような気にもなる。
周囲も最初だからと応援してくれるのでそういう恩恵も授かれる。
そんな加速もついてひゅーいひゅい♪
問題はそこから先です。
あれ。
あれれれれ。
こんなはずでは・・・ てか、
なんでこんなこと、
始めちゃったワケ?
と、ふと我に返る瞬間が訪れます。
本当にそこで初めて、
自分が始めちゃったことの大きさとその先の壁の厚さに直面して、
ただただ呆然。
(ここに来るまでそれに気付かない自分にも、呆然)
どうするよ。自分!
まぁ、例を挙げればきりがないのですが、
こういう状況が過去に数え切れないほどありました。
でも、唯一今の仕事に関してだけは、
ずぅっと一環してぶれずにきた思いがあります。
それは、
「絶対に看板はおろさない」
ということ。
仕事がなくって事務所としてやっていくのがしんどくなった時も、
雇われの身で同じ仕事をやることもできたけれど。
子供ができて家事と育児をこなしながらの専門職で、
くぅう!今しかないカワイイ子供との時間が少ない~!
いいのか?自分!
と葛藤する気持ちが湧き上がるときも。
ワタシは、続ける。
これだけは。
そう思って、今まできています。
今の時代、終身雇用なんて言葉も存在感がなくなって、
仕事を辞めるも変るもずっと軽くなってきているけれど、
そんな中、自営業こそ自由で軽~い印象ももたれるけれど、
何を隠そう。
もっともコッテコテの、
終身雇用です。
自分が自分で看板を降ろさない限り。
自分自身で雇い続けるんです。自分を。
そして、自分を雇い続けるために、
来た仕事を一生懸命やるんです。
文句たらたら言いながらも。
一度看板を降ろしてしまえば、
再び・・・ということは、更に更にハードルが高くなります。
ここまで、しんどいときに助けてくれた周囲の人たちからも、
大きな信頼を失うことになってしまいます。
これまでお仕事をもらえてきたのは、
そこにいつもこの看板があったから。
6年間続けてきて思うのは、
続けてきたからこそ今がある ってことでした。
ふにゃふにゃの意志の固さと、
とろとろの脳みその思考回路を持つワタシですが、
これだけは、ずぅっと変らずにいようと思います。
世田谷に、
Atelier MASU あり!
最近我家にちょこちょことダンボールで送られてくる、宝の山です。
そう、
懐かしのLPレコードたち。
あと2箱くらい、これから更に届くそうです。
どこから?
旦那さんの実家から。
実は旦那さんのお兄さんは、40代の若さで7年ほど前に,
ガンでお亡くなりになりました。
なので、ワタシはお会いしたことがないのですが、
彼の集めていたLPレコード達を、
実家に帰るたびになんとか聴く方法がないかと考えていた旦那が、
とうとう買ったのです。
↓これを。
音源をデジタル化できるLPレコードプレーヤー!
これで、この宝の山たちの音源を、Ipodでも聴けちゃうようになりました。
もちろん我家のリビングでも、
以前から使っていた↑ハーマンのスピーカーで、
ワシワシずんずんノリノリ!で、聴くことができます。
それにしても、昔のレコードのジャケットって、
ホントにかっこいいですね~。
音も勿論、今きいても「いいじゃーん♪」っていうものが沢山です。
かなーりディープな品ぞろえなので、
マニアな方には掘り出し物もあるのでは・・・と思えるくらいのお宝の山です。
ロック喫茶でもやろうかな。
ちなみに、「これ、誰だと思う~?」とかけられた一枚のレコード。
冒頭写真の左に立てかけてあるものですが、(暗くて見えないかな・・・)
聴いてぶっとびました。
しいていうならば、
盛りのついた猫がシャウトしているような感じ。
世界の、
ヨーコ・オノ
でした。
あの、ラブ アンド ピース な女性が、
若かりし頃はこんなにエキセントリックで弾けてたオネェチャンだったなんて。
そんな驚きを発見しながら、
今日も宝の山をちびちびと掘り下げていっています。
一応、ウチの息子もこの五月の節句が初節句となります。
そういうことにはとんと無頓着な親二人ですが、
それはほれ、
じぃちゃんばぁちゃんがやはり孫は可愛いらしく、やんややんやとせかされて、
この週末にようやく五月人形を探しに行ってきました。
とはいっても、あちこちの店を歩き回っていろいろ吟味するほどマメではない両親。
ネットでほぼ目星をつけておいて、その店に直行。
現物を確認して気に入ったので即購入。
ものの15分ほどのお買い物です。
買ったのはこちら↓

「御所人形」
と、いうそうです。
生まれたての赤ちゃんのお人形。手足もぷっくらしてて、表情もかわいいです。
なんとなく、うちの息子の雰囲気に合っていそうなので決めました。
持ち帰って飾ってみると、我家のインテリアにもなじみました。
(仕事柄当然、それも考えて買ったのですが・・・)
「男の子のお人形は、一年中飾っていてもいいんですよ~」
と、お店の人。
そういえば、雛人形をいつまでも飾っておくと、
嫁にいくのが遅れる・・・とか、言われたことありましたっけ。
でも、確かワタシの実家でも、
さっさと雛祭りが終わったら人形しまってたはずだけど、
相当妙齢になってからのお嫁入りだったし。
あんまりアテにはなりませんね。
で、とっとと目的の買い物は終わらせて、
浅草~河童橋散策へと切り替わりました。
うっほほ~い!
楽しいですね~。ここいら辺て。
←こんなラブホがあったり。
←こんな旅館があったり。
↑河童橋の一軒で、こんな石灯籠も見つけました。
南部鉄でできた石灯籠。
お庭やバルコニーにちょこんと置いてあってもかわいいデス。
浅草橋の人形屋では、とっとと退散したくせに、
河童橋でのワタシ達の目の泳ぎっぷりはすごかったです。
いやはや、たのし~い! 別に料理人じゃなくてもたのしいです。
思わず業務用のハーブとかを、オトナ買いしちゃいました。
これからしばらく、
我家はイタリア~ん な食卓です。
そういうことにはとんと無頓着な親二人ですが、
それはほれ、
じぃちゃんばぁちゃんがやはり孫は可愛いらしく、やんややんやとせかされて、
この週末にようやく五月人形を探しに行ってきました。
とはいっても、あちこちの店を歩き回っていろいろ吟味するほどマメではない両親。
ネットでほぼ目星をつけておいて、その店に直行。
現物を確認して気に入ったので即購入。
ものの15分ほどのお買い物です。
買ったのはこちら↓
「御所人形」
と、いうそうです。
生まれたての赤ちゃんのお人形。手足もぷっくらしてて、表情もかわいいです。
なんとなく、うちの息子の雰囲気に合っていそうなので決めました。
持ち帰って飾ってみると、我家のインテリアにもなじみました。
(仕事柄当然、それも考えて買ったのですが・・・)
「男の子のお人形は、一年中飾っていてもいいんですよ~」
と、お店の人。
そういえば、雛人形をいつまでも飾っておくと、
嫁にいくのが遅れる・・・とか、言われたことありましたっけ。
でも、確かワタシの実家でも、
さっさと雛祭りが終わったら人形しまってたはずだけど、
相当妙齢になってからのお嫁入りだったし。
あんまりアテにはなりませんね。
で、とっとと目的の買い物は終わらせて、
浅草~河童橋散策へと切り替わりました。
うっほほ~い!
楽しいですね~。ここいら辺て。
↑河童橋の一軒で、こんな石灯籠も見つけました。
南部鉄でできた石灯籠。
お庭やバルコニーにちょこんと置いてあってもかわいいデス。
浅草橋の人形屋では、とっとと退散したくせに、
河童橋でのワタシ達の目の泳ぎっぷりはすごかったです。
いやはや、たのし~い! 別に料理人じゃなくてもたのしいです。
思わず業務用のハーブとかを、オトナ買いしちゃいました。
これからしばらく、
我家はイタリア~ん な食卓です。
カレンダー
| 10 | 2025/11 | 12 |
| S | M | T | W | T | F | S |
|---|---|---|---|---|---|---|
| 1 | ||||||
| 2 | 3 | 4 | 5 | 6 | 7 | 8 |
| 9 | 10 | 11 | 12 | 13 | 14 | 15 |
| 16 | 17 | 18 | 19 | 20 | 21 | 22 |
| 23 | 24 | 25 | 26 | 27 | 28 | 29 |
| 30 |
最新記事
(08/16)
(05/29)
(05/27)
(05/22)
(04/13)
(04/10)
(02/25)
(09/12)
(09/11)
(08/31)
カテゴリー
ブログ内検索
アーカイブ
最新コメント
プロフィール
HN:
masu
年齢:
56
性別:
女性
誕生日:
1969/09/27
職業:
一級建築士
趣味:
しばらくおあづけ状態ですが、スケッチブック片手にふらふらする一人旅
自己紹介:
世田谷で、夫婦二人の一級建築士事務所をやっています。新築マンションからデザインリフォーム等をはじめ、様々な用途の建築物の設計に携わっています。基本呑気な夫婦で更新ペースもぬるーく、更新内容も仕事に限らずゆるーく、でもていねいに、綴っています。
mail
お問い合わせ、メールはこちらへ masumka19690927@me.com
リンク
フリーエリア
